Explore the project's details, including location, status, year, surface area, client, and scope of work.
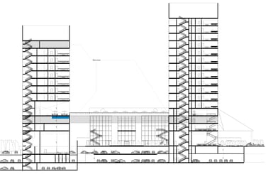
This luxury hotel project is located in Riyadh and designed as a unified architectural mass with a dynamic visual split that gives the impression of twin towers. The façade features sleek glass panels and elegant lines that reflect modern hospitality standards. The design blends bold presence with functional flow, creating a high-end destination for travelers and business guests alike.
Location
Status
Year
Surface
Clients
Scope of work
Al-Wadi District, Riyadh, Saudi Arabia
Under Construction
2019
11000 m2
Mr/Saad AL-Luhaidean
Architectural Design
Mep Design
🏷️ Alternative Façade Design Option
Option / 2
Al-Luhaidan Hotel
Two Tower
135*82 m
















CREDITS
Design Team
Architect
Ahmed Fairoz
Omnia Wanis
Ahmed Yousef
Mohamed Ezzat
Eman Sadek
Mostafa Omar
Partners
Project Coordination : Fumes Architects
Landscape Architect : Ahmed Fairoz
Structure Engineer : Ibrahim Abd Alaal
Mep, Building Physics : Fumes Architects
Visualizations : Fumes Architects